https://affim.baidu.com/cps/chat?siteId=16732687&userId=32993880&siteToken=199e64d59fa365d82c8db2c458f4cc8c&cp=&cr=http://m.sezwick.com/&cw=
首页
>
商用厨房工程
-
按需定制
集研发、生产和销售为一体的中高档 西安商用厨房设计、厨房厨具专业制 造商,具有各种厨房设备、制冷制热 设备等生产能力。
-
厨房勘察
专业团队上门进行现场勘查,为客户 按需定制助于自己的专属厨房。
-
免费设计
上万家商用厨房设计经验,把更好的 更适合的,更省钱的方案提供给您。
-
设备安装
生产的厨具由公司专业的施工师傅根 据图纸进行安装,一比一还原。
-
无忧售后
所有厨具均可享受终身维护服务,全 国10000+服务网点,较低的价钱享 受VIP服务。
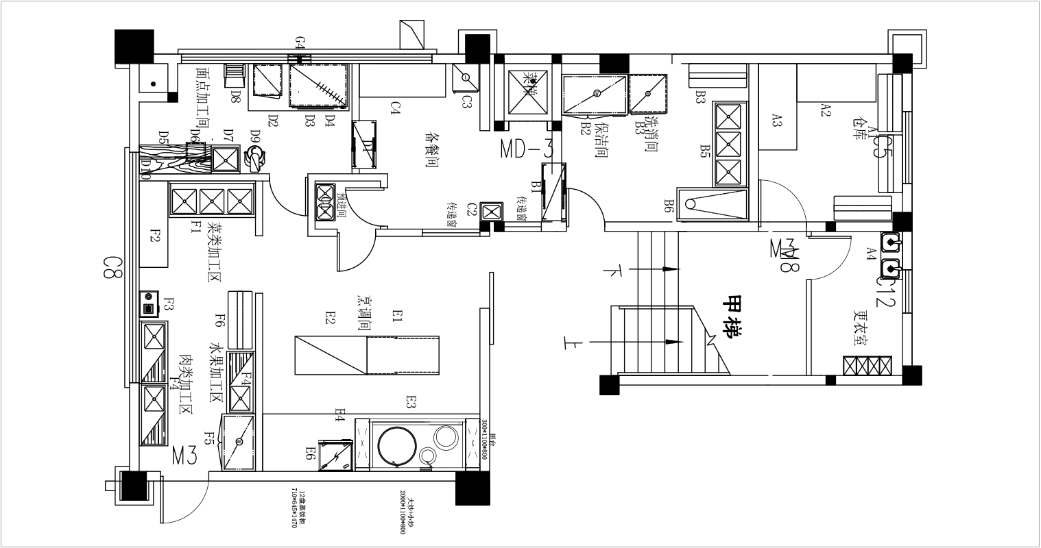
配套方案展示
商用厨房设计规划|设备定制|工程施工
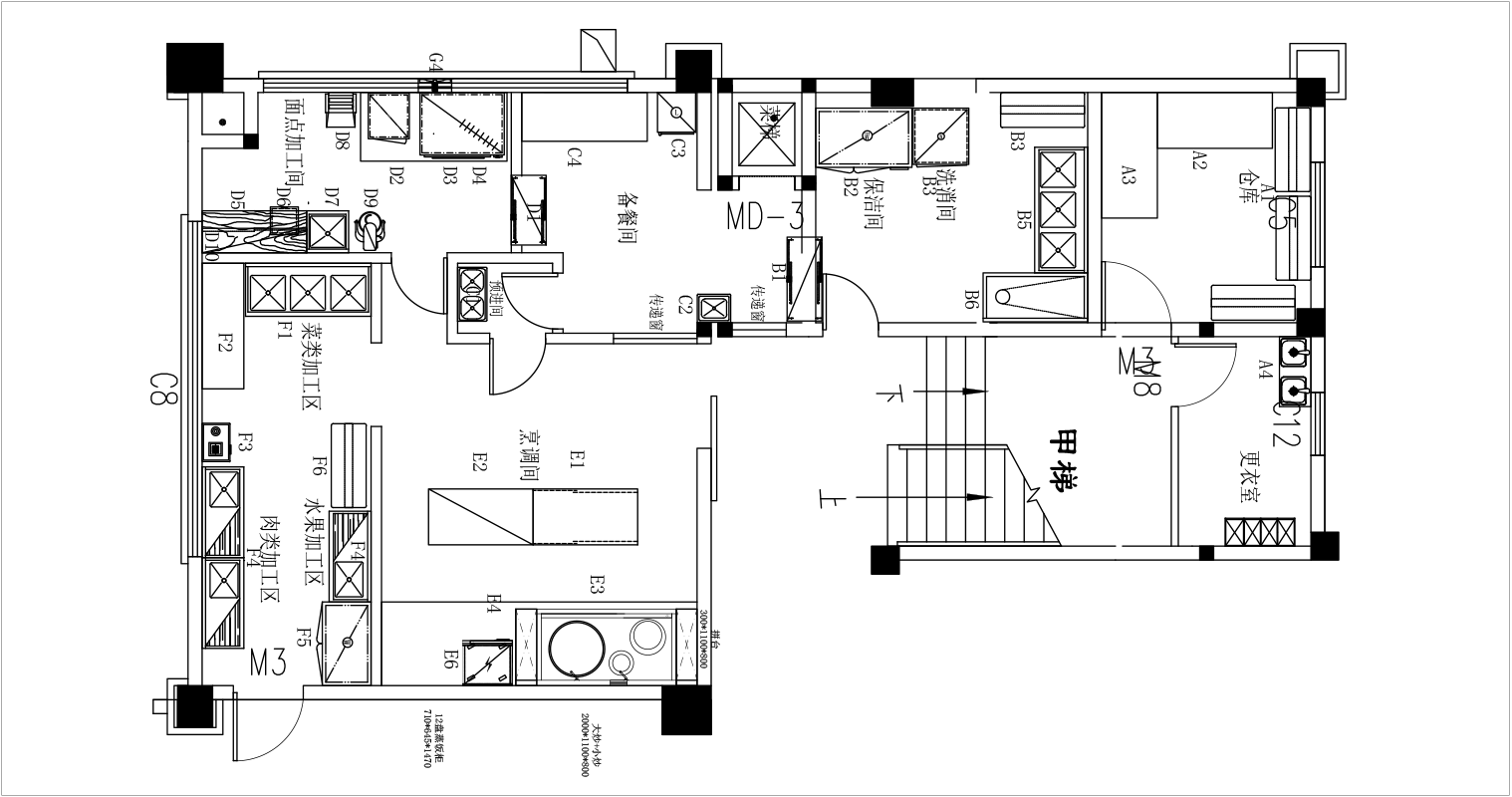
厨房工程展示
商用厨房设计规划|设备定制|工程施工
提供设备配套方案报价
20年知名商厨设备品牌,按需定制,全品类商厨设备生产供应
根据环保要求和水电接驳,对后厨合理规划
现场勘测,急速合理规划搭配方案及报价
根据环保要求和水电接驳,对后厨合理规划
现场勘测,急速合理规划搭配方案及报价
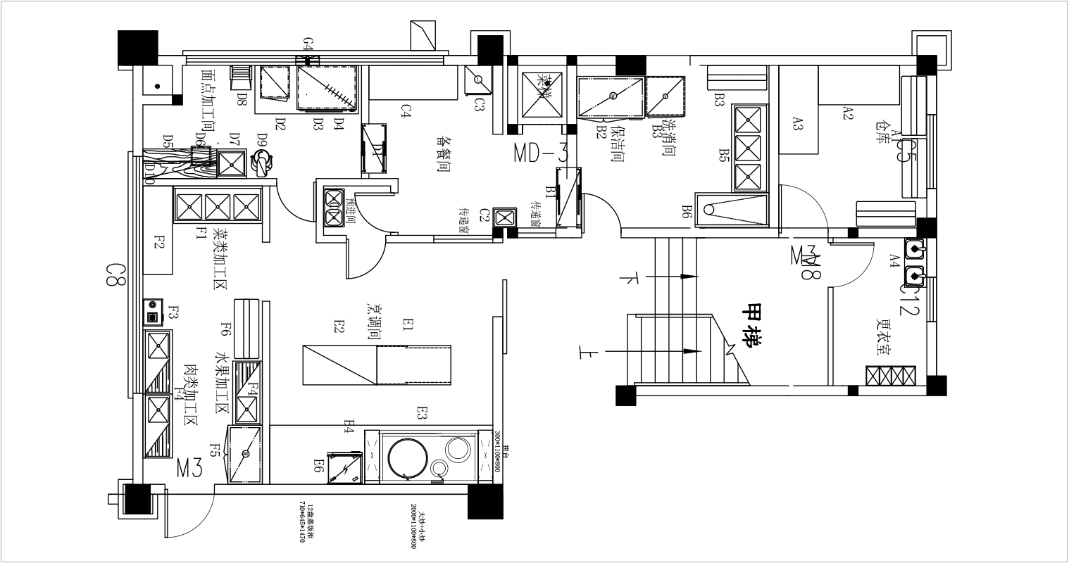
根据环保要求和水电接驳,对后厨合理规划
现场勘测,急速合理规划搭配方案及报价
在线咨询方案
提供您的基本情况,设计您的专属方案
专注厨房工程20年专属工程师1天内为您快速设计工程平面图及报价清单
快三导师带计划赚钱工程流程
专注厨房工程20年专属工程师1天内为您快速设计工程平面图及报价清单